In einem gepflegten Mehrfamilienhaus BJ 1960 gelegen, besticht diese neu sanierte Wohnung durch einen sehr großzügigen Schnitt, die Verwendung bester Materialien und eine barrierefrei Gestaltung.
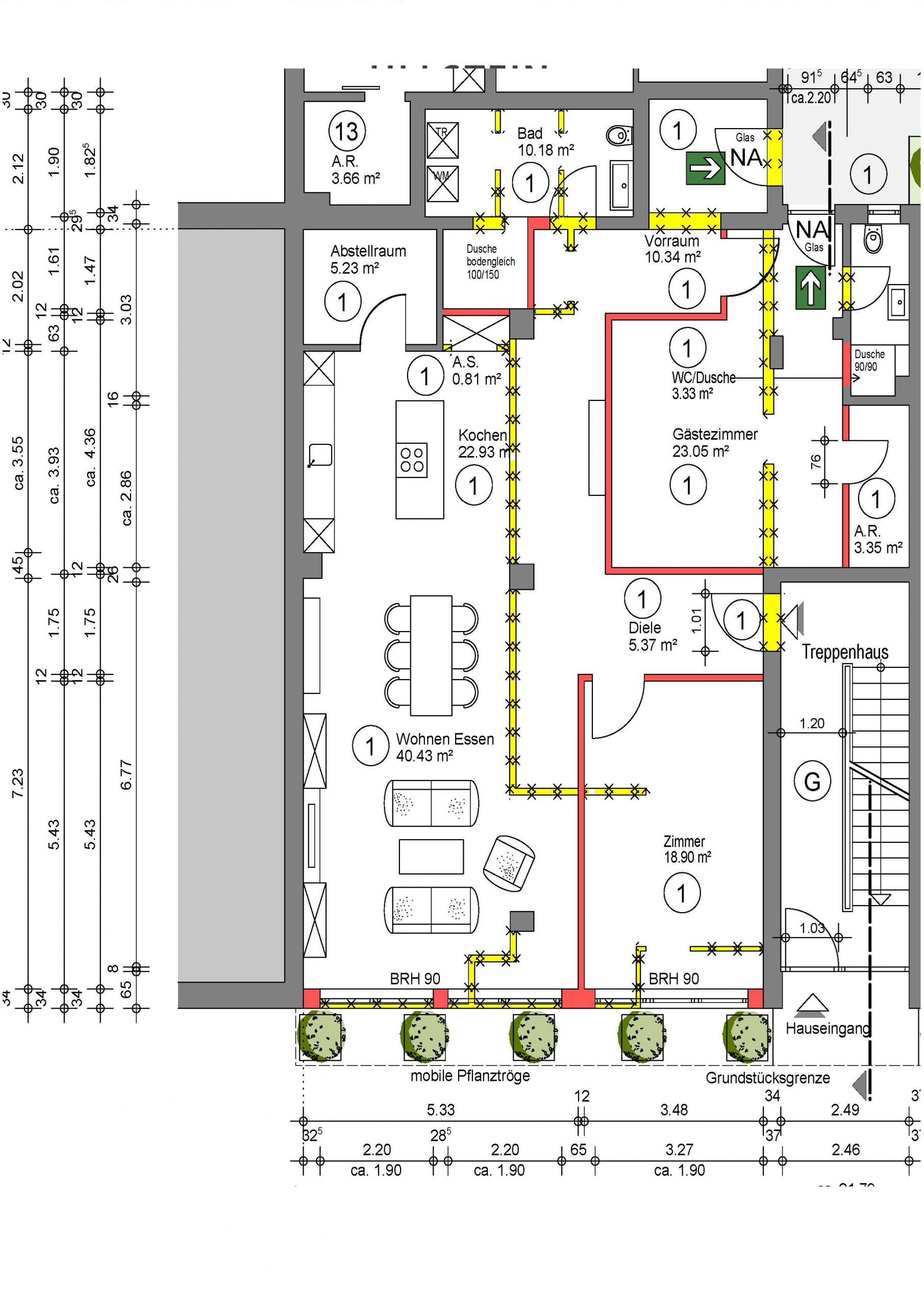
Vom Eingang abgehend ist direkt links das sehr großzügige Schlafzimmer gelegen, geradeaus gelangen sie in den offen Wohn-, Ess- und Küchenbereich. Hier angeschlossen finden Sie eine Abstellkammer. Im hinteren Wohnungsteil gelangen Sie in das sehr große, innen liegende Duschbad und, an den Hintereingang angeschlossen.
Im Innenhof befindet sich der praktische KFZ-Aussenstellplatz (plus 70 €), von dem Sie direkten Zugang zu Ihrer Wohnung haben. Eine kleine Hinterhofterrasse ist ebenfalls nutzbar.
Zum Kreis Mettmann gehörend, zeichnet sich Hilden durch eine charmante Mischung aus gewachsenen städtischem Flair und grünem Umland aus.
Hier sind Sie mit einer sehr guten Infrastruktur umgeben, allen Geschäften des täglichen Bedarfs, diversen Supermärkte, selbst die Innenstadt ist fußläufig erreichbar, besser geht es kaum. Schulen, Kindergärten und alle öffentliche Einrichtungen sind in direkter Anbindung vorhanden.
Die Wohnung befindet sich nahe von 2 Haltestellen des öffentlichen Nahverkehr (Linie O3 und 781), die Hildener Innenstadt ich binnen weniger Minuten mit den Auto und in 15 Minuten zu Fuß erreichbar. Die Autobahnen A3 und A46 ermöglichen eine schnelle Verbindung zu den umliegenden Großstädten Düsseldorf, Wuppertal, Leverkusen und Köln, sodaß auch Pendler hier sehr gut aufgehoben sind.
Der Freizeitwert von Hilden ist ebenfalls beeindruckend, ob man am Rhein verweilen möchte, im Bergisches Land wandern oder im Sauerland urlauben möchte, alles ist praktisch vor der Haustüre. Hier genießt man ein sehr gutes Leben inmitten der Metropole-Region Rhein/Ruhr.
+ alles neu und im Erstbezug
+ hochwertige Badezimmerausstattung mit Mamor
+ barrierefreie Dusche
+ Toilette mit Bidetfunktion
+ Handtuchheizkörper
+ Waschmaschinen-Anschluß
+ Dreifachverglasung mit elektrischen Rollläden
+ wertige Vinylböden
+ geschmackvolle Innentüren
+ vielfältige Steckdosen und Lichtanschlüsse
+ Warmwasser mit Durchlauferhitzer und Untertischgerät (auf ihre Stromkosten)
+ Zentralheizung
+ KFZ-Stellplatz plus 70 € (Wallbox geplant)
+ kleine Hinterhofterrasse (in Erstellung)
Die m²-Angaben sind ca.-Werte. Alle in diesem Angebot enthaltenen Angaben, Abmessungen und Preisangaben beruhen auf Angaben des Eigentümers/Vermieters (oder eines Dritten). Der Makler übernimmt hierfür keine Haftung.
Wir freuen uns auf Ihre Kontaktaufnahme. Für Besichtigungen stehen wir Ihnen gerne, auch am Wochenende, zur Verfügung! Ihre Besichtigungsanfragen richten Sie bitte an Nikolaus Ullstein: nikolaus@ullstein.info, Telefon +4921168814122, mobil +491705249501. Vielen Dank.
