ACHTUNG: Diese Wohnung wird nur befristet für ca. 3 Jahre + vermietet, da die Eigentümer dann ggf. aus dem Ausland heimkehren möchten. Gesucht ist bevorzugt ein Personenkreis, der beruflich auf begrenzte Zeit in Köln/Umland lebt und arbeitet.
Vielen Dank für Ihr Interesse, Sie beziehen hier eine Neubau-Wohnung mit Baujahr 2016-2018, die „Clouth-Galerie“ im Herzen von Nippes. Dieses Bauobjekt besteht aus zwei Wohnhäusern mit 4 Hauseingängen, welche in Bezug auf Lage und Ausstattung keine Wünsche offen lassen.
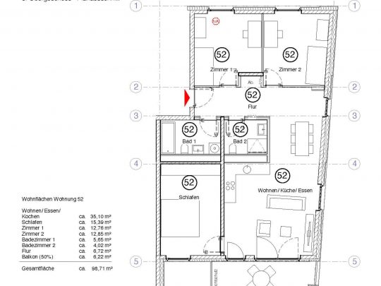
Zur Wohnung: Vom Eingangsbereich geht direkt rechts das innen liegende Badewannen-Badezimmer ab (mit Stellplatz für die Waschmaschine und Trockner), anschließend rechts ein Duschbad. Links vom Flur befinden sich zwei kleinere Schlafzimmer, die für die Kinder gedacht sind oder auch als Büros nutzbar wären. Geradeaus gelangen Sie über den Essbereich in den großzügigen Wohnraum mit offener Einbauküche, von dem geradeaus der Balkon und rechts das große Elternschlafzimmer abgeht, natürlich wahlweise auch als Büro zu nutzen. Im Küchenbereich ist eine Einbauküche eingebaut. Der Wohnraum/Balkon und das Elternschlafzimmer ist nach Süden, zwei Schlafzimmer nach Norden ausgerichtet.
Der Stadtteil Nippes zeichnet sich durch zentrumsnahe Lage mit perfekter Anbindung an die Innenstadt und eine sehr gute Infrastruktur aus. Die Neubauten sind auf dem ehemaligen Clouth-Gelände errichtet worden (hier war weit über 100 Jahre eine Reifenfabrik angesiedelt), welches mit Weitläufigkeit, zeitgenössischer Industriearchitektur, geschmackvoller Umfeld-Gestaltung und mit modernstem Stadtquartier-Charakter besticht. Direkt um die Hausecke finden Sie einen Bäcker.
Die beliebte Einkaufsmeile an der Neusser Straße und der Wilhelmplatz (Marktplatz mit Frischwaren) sind zu Fuß binnen 5-10 Minuten zu erreichen. Hier kann weit mehr als der tägliche Bedarf gedeckt werden, dies ist das wichtigste Einkaufszentrum im Norden der Innenstadt.
Von Ihrem neuen Wohnort sind alle BAB mit Ihrem KFZ binnen 5-10 Minuten erreichbar, mit Bus und/oder Straßenbahn sind Sie in ca. 20-25 Minuten in der Kölner Innenstadt und am HBF. Direkt 100 Meter vom Hauseingang entfernt befindet sich der kleine Johannes-Giesbert-Park, der Zoo und das Rheinufer sind 10-15 Gehminuten entfernt.
+ Wohnung ist neu renoviert
+ Neubau aus Bj. 2016-2018
+ Parkett-Böden geölt im Wohn- und Schlafbereichen
+ Klimaanlage für Wohn- und Elternschlafbereich
+ moderne Einbauküche
+ Fußbodenheizung mit Einzelraumregelung
+ hochwertigste Badezimmerausstattung
+ Handtuchheizkörper
+ Einbauschrank im Flur
+ geregelte Wohnraumlüftung
+ Fenster mit modernster 3fach-Isolierverglasung
+ Niedrig-Energie-Bauweise
+ Sonnenlage
+ elektrische Rollladen
+ Tiefgarage mit Wallbox (110 €, zusätzlich zum Mietpreis, nicht optional, kann untervermietet werden)
+ Fahrradkeller
+ qualifizierter Zeitmietvertrag über 3 Jahre +
+ Mieterhöhung mit Staffelmiete plus 30 € pro Jahr, 4x
+ Kaution kann als Bankbürgschaft erbracht werden
Wir freuen uns auf Ihre Kontaktaufnahme! Für Besichtigungen stehen wir Ihnen gerne, auch am Wochenende, zur Verfügung!
Weitere interessante Objekte finden Sie auf unserer Homepage unter www.ullstein.info
Alle in diesem Angebot enthaltenen Angaben, Abmessungen und Preisangaben beruhen auf Angaben des Eigentümers (oder eines Dritten). Der Makler übernimmt hierfür keine Haftung.
