Sonniges Penthaus! Ruhig gelegen, im 7. und letzten Geschoss befindet sich das sonnendurchflutetes Penthaus. Die Wohnung wird ausschließlich an eine Person, oder ein Paar vermietet wird!
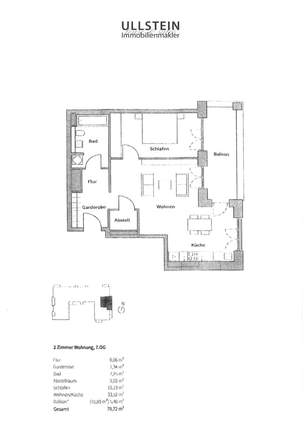
Sie werden sich freuen über das hochwertige Eichenparkett, die exklusive Einbauküche mit reichlich Platz, die 10,8 m² großen Terrasse – aus allen Räumen begehbar – und über vieles mehr, z.B. Highspeed surfen durch Glasfaserleitung! Siehe auch Grundriss.
Das schicke Wohnhaus hat einen Personenaufzug und die Zugänge sind barrierefrei.
Zur Wohnung gehört ein Kellerabteil und ein richtig toller Kfz-Abstellplatz (120 € im Monat) in der hellen Garage im Erdgeschoss. Dort befindet sich ebenfalls der Fahrradabstellraum.
Absolut begeistern wird Sie auch der kurze Einkaufsweg zu den im Wohncarree vorhandenen Märkten: Aldi, Edeka, DM.
Sie wohnen perfekt angebunden im neuen Lyoner Quartier von FFM- Niederrad, nahe des Frankfurter Stadtwaldes, dem Uniklinikum, dem Main und der City.
Die Verkehrsanbindung ist excellent:
+ 5 Autominuten zur Bundesautobahn (Frankfurter Kreuz), zum Flughafen und in die Innenstadt.
+ Der S-Bahnhof Niederrad ist in Lauflage zur Wohnung. Mit den S-Bahnlinien S7,S8 und S9 haben Sie die Anbindung u.a. an die Frankfurter – Innenstadt, FFM-Sachsenhausen, den Hauptbahnhof und die Messe. Außerdem halten dort die Regionalzüge RE2 (Koblenz Hbf) und RE70 (Mannheim Hbf.).
+ Der Frankfurter Hauptbahnhof liegt nur eine Station entfernt, ebenfalls die Commerzbank-Arena. Zwei Stationen benötigen Sie zum Rhein-Main-Flughafen.
+ Bus- und Straßenbahnlinien (12 und 19 ) komplettieren das hervorragende Nahverkehrsangebo.
Alle Einrichtungen für den täglichen Bedarf sind in Niederrad vorhanden und zum Teil im Haus oder dem unmittelbaren Umfeld der Wohnung.
Golfclub, Waldschwimmbad und die Commerzbank-Arena sind mit dem Fahhrrad, oder dem öffentlichen Verkehrsmitteln schnell erreichbar. Auch Tennis- und Reitsportfreunde finden entsprechende Anlagen nahe des Objektes.
+ hochwertiger Eichenparkettfußboden in allen Wohn- und Schlafräumen
+ Küchenbereich mit anthrazitfarbenen, großformatigen Bodenfliesen
+ Bad, Bodenfliesen und Wandfliesen anthrazit, Objekte weiß
+ Badewannenbad mit Duschfunktion und Abtrennwand
+ beleuchteter Spiegel
+ Abstellplatz für WM und Trockner im Bad
+ große Dachterrasse/Balkon unter freiem Himmel
+ exklusive Einbauküche -magnoliafarbene Hochglanzfronten + schwarze Arbeitsplatte – hochwertige Markengeräten (z.B.Gaggenau-Spülmaschine)
+ bodentiefe Fenster mit Rollläden
+ Abstellraum
+ Videogegensprechanlage
+ Glasfaserleitung -Telekom Fibre to home- im Wohn- und Schlafzimmer.
+ Energiegewinnung durch Kraft-Wärme-Kopplung
+ Lüftungsanlage mit Wärmerückgewinnung
Ihre Besichtigungsanfragen richten Sie bitte -bevorzugt telefonisch- an Angela Ullstein, Telefon 069-67731110, mobil 0171-3286653. Vielen Dank.
Wir freuen uns über Ihre Kontaktaufnahme. Für Besichtigungen stehen wir Ihnen gerne auch am Wochenende zur Verfügung.
MIetvertrag mit
+ Zusatzvereinbarung Indexmiete
+ Kündigungsausschluss in den ersten 24 Monaten.
Alle in diesem Angebot enthaltenen Angaben, Abmessungen und Preisangaben beruhen auf Angaben des Eigentümers/Vermieters (oder eines Dritten). Der Makler übernimmt hierfür keine Haftung.
