Diese spektakuläre Aussicht auf Frankfurt am Main und Umgebung wird Sie Tag und Nacht faszinieren! Sie wohnen auf der Nord-Westhälfte der exklusiv ausgestatteten 15. Etage des in 2000 erbauten, nur 39-Parteienhochhauses SKYLIGHST, mitten in der City Frankfurts am Eschenheimer Turm.
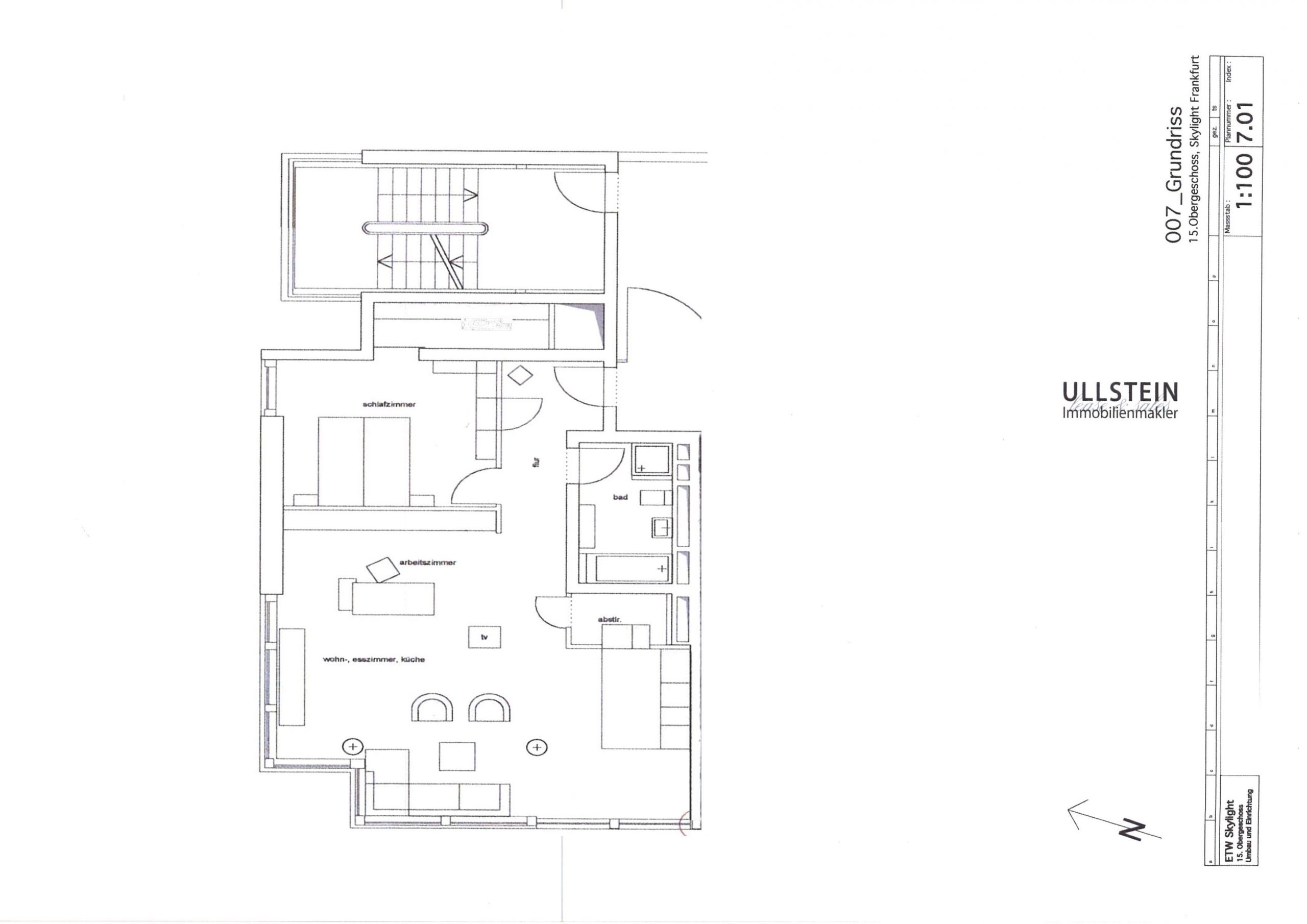
Über den Doorman-Service im Erdgeschoss erreichen Sie zügig mit einem der zwei zur Verfügung stehenden Glasaufzügen die 15. Etage. Hier ist der Eingang zu Ihrer Nord-West-Etage mit Traumblick. Siehe hierzu auch den Grundrissplan.
Die zwei Zimmer verfügen über ein exklusive Teilmöblierung (Einbauschränke, Sideboard, Bulthaupküche u.v.m.). Das Schlafzimmer hat eine begehbare Ankleide. Außerdem vorhanden sind ein Bad mit Badewanne und Dusche, sowie zum Wohnraum hin offen die Einbauküche.
Zu dieser Einheit gehört auf den zwei Tiefgeschossen ein großer, abgeschlossener Kelleraum und ein geräumiger Tiefgaragenautoabstellplatz (200 € p.M., kein Duplex). Außerdem vorhanden ist ein Fahrradabstellraum.
Allerbeste Citylage mit höchster Lebensqualität; fußläufig gelegen zu allen beliebten Innenstadt-Einkaufsstraßen, ebenso zum Operplatz, der Haupwache, der Altstadt, dem Römer, zum Dom und dem Mainufer. Ebenfalls in Lauflage das gesamte öffentlche Verkehrsnetz.
+ Echtholz-Ahornindustrieparkett mit Fußbodenheizung/- kühlung
+ Wände und Decken mit Malervlies
+ exklusive Einbaudeckenstrahler
+ Bussystem
+ Möblierung mit hochwertigen Schrank- und Sideboardeinbauten vom Schreiner, zum Teil mit Glasschiebetüren, Ankleide mit Einbauten.
+ Einbauküche von Bulthaup
+ Bad mit Badewanne und Dusche
Gerne zeigen wir Ihnen das Objekt -auch am Wochenende-. Wir freuen uns auf Ihren Anruf, oder eine Email.
+ Alle Daten stammen vom Eigentümer; für die Richtigkeit übernehmen wir keine Haftung.
+ Mietvertrag mit Zusatzvereinbarung mit Staffelmiete.
+ Kündigungsausschluss in den ersten 24 Monaten.
