Ab sofort zur freien Verfügung!
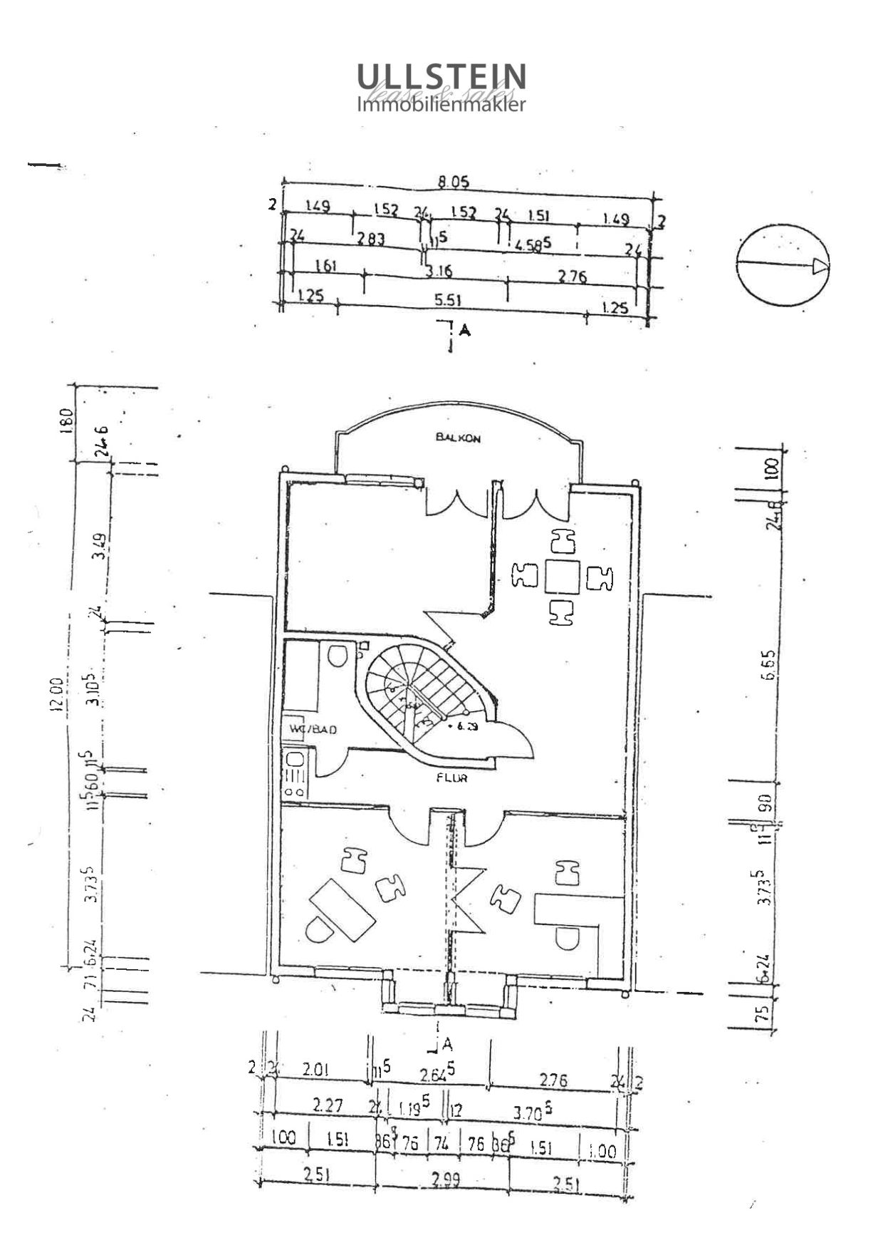
Diese Dreizimmereigentumswohnung mit großem Süd-West-Balkon und zwei KFZ-Außenstellplätzen befindet sich im Fußgängerbereich der Ludwigstr. in einem 4-Parteienhaus aus dem Jahr 1986. Die Wohnung erstreckt sich auf der kompletten 1. Etage des Gebäudes. Zur Immobilie gehört ein eigener Kellerraum. Die zwei Stellplätze sind im KP enthalten.
Die hellen Räumlichkeiten wurden bisher als Praxis und Büro genutzt. Vor Einzug sind diverse Gewerke zu erneuern, z.B. Fußböden, Bad, Küchenbereich, Innentüren. Dieser Umstand bietet Ihnen viele Gestaltungsmöglichkeiten für die Erschaffung Ihrer individuellen Wohlfühlwohnung im Herzen von Neu-Isenburg.
Die Etagenwohnung befindet sich in einer Fußgängerzone im Herzen von Neu-Isenburg. Die Lage zeichnet sich durch eine gute Infrastruktur aus und bietet zahlreiche Einkaufsmöglichkeiten, Restaurants und Cafés in unmittelbarer Nähe.
Samstags ist der beliebte Wochenmarkt auf der unmittelbar vor Ihrer Haustür liegenden Bahnhofstraße. Zudem sind Schulen, Kindergärten und Ärzte gut erreichbar. Die umliegenden Grünflächen laden zu Spaziergängen und sportlichen Aktivitäten ein.
Neu-Isenburg ist eine lebendige Stadt in unmittelbarer Nähe zu Frankfurt am Main. Die Stadt bietet eine gute Anbindung an öffentliche Verkehrsmittel und Autobahnen, was die Mobilität der Bewohner erleichtert. Kulturelle Veranstaltungen, Einkaufszentren und Freizeitangebote sorgen für Abwechslung und Unterhaltung. Die Nähe zum Flughafen Frankfurt macht Neu-Isenburg auch für Vielreisende attraktiv.
Die Region um Neu-Isenburg besticht durch ihre Vielfalt und Attraktivität. Das Rhein-Main-Gebiet bietet eine hohe Lebensqualität und eine starke Wirtschaftsregion. Die umliegenden Städte und Gemeinden bieten zahlreiche Freizeitmöglichkeiten, Naturerlebnisse und kulturelle Highlights. Die Nähe zu Frankfurt am Main und die gute Anbindung an den Nahverkehr machen die Region zu einem beliebten Wohnort.
Die zwei Zimmer zur Vorderseite des Hauses gelegen sind durch eine Flügeltür verbunden, aber jeweils vom Flur begehbar und können somit einzeln genutzt werden. Siehe Grundriss und Fotos.
Ihre Anfragen richten Sie bitte an Angela Ullstein: mail@ullstein.info, Telefon 069-67731110, mobil 0171-3286653. Vielen Dank!
Alle in diesem Angebot enthaltenen Angaben, Abmessungen und Preisangaben beruhen auf Angaben des Eigentümers/Vermieters, oder eines Dritten; für die Richtigkeit übernehmen wir -Makler- keine Haftung. Weitergabe an Dritte verpflichtet zur Übernahme der vollen Courtage.
